14742-14750 Nelson Ave, City of Industry

REDEVELOPMENT/REHAB

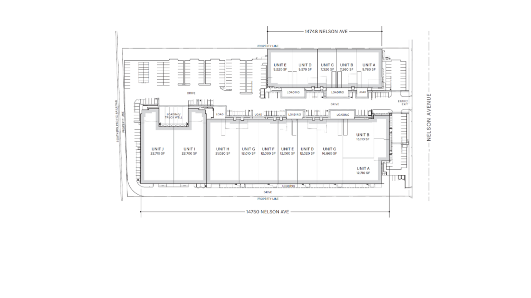
While working with Rexford Industrial, Patrick oversaw the acquisition of 14742-14750 Nelson Ave, a single tenant corporate surplus industrial project located in City of Industry. The site was being pursued by the market as a scrape and redevelop site to build a single tenant 200,000 SF project. Patrick saw the opportunity to drive cash flow of a corporate surplus asset through a modernization and repositioning plan, seizing on the distinctive ability to divide a single tenant site and deliver modern small dock-high units in a very supply constrained market. This unique approach allowed not only Rexford to win the deal, but also outperform market returns, stabilizing north of 8% return on cost.

Previous
Previous

24105 Frampton Avenue, Torrance

Next
Next

12821 Knott Street, Garden Grove